「」木质北欧风,舒适生活每一处

文章图片

文章图片

文章图片

文章图片

文章图片

文章图片

文章图片

文章图片

文章图片

温馨的家不该是华丽元素的堆砌 , 也不该被标新立异的设计感喧宾夺主 , 家的特质最该是“舒适” , 最该是让你身心放松的那个空间 。
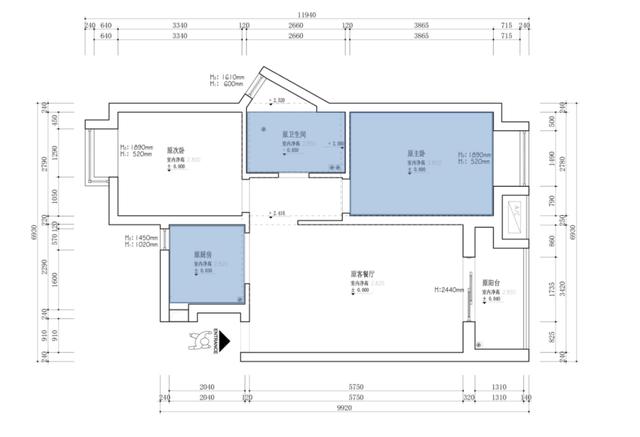
● 项目简介
地址 | Address :华清学府
面积丨Square Meters :71.8㎡
户型丨Apartment :两室
户型优点
1、典型的两室一厅户型;客厅与主卧朝南 , 采光好;
2、墙体可改造 , 优化空间大;
3、层高2.8m , 顶面可造型 。
户型缺点
1、主卧房间偏小 , 不够舒适;
2、厨房面积小 , 放冰箱会拥挤;
3、卫生间面积过大 。
1、厨房小 , 外面做嵌入式冰箱 , 减少厨房拥挤同时防止冰箱油烟难清理 , 冰箱外做柜门 , 让空间看起来干净整洁, 风格更搭配;
2.冰箱边上增加储物柜 , 同时增加阳台储物柜 , 扩展收纳空间;
3.原卫生间较大 , 将墙体向内移 , 增加主卧面积 , 做内嵌衣柜 , 增加主卧空间感 。
▼入户到客厅
▼客厅2
▼客厅3
【「」木质北欧风,舒适生活每一处】▼厨房
▼次卧
▼次卧2
▼主卧
▼卫生间
▼俯瞰图
“舒适”是家永恒的主题
推荐阅读
- 娱乐大碗茶|置身于绿意之中变身夏日精灵,清爽又舒适,赵丽颖森系大片太唯美
- 「」?90㎡舒适北欧风格装修,回归简单纯粹的生活!
- [地下城与勇士]dnf最受欢迎的职业,哪怕伤害低,但控制超多,打起来非常舒适!
- 谈古说今知时尚|让你清凉舒适、风情万种,三伏天穿什么?选择印花连衣裙准没错
- 皇家加勒比海洋神华号邮轮咋样有从大连出发的吗
- 在广州怎样给老爸买平价舒适的衣服
- []如果你家是小户型,建议学她家装修简约风,全屋简洁又舒适!
- ##年轻夫妻的北欧风小家,没有造型的简洁空间不乏设计感,值得赞美
- 持家有道|简约又舒适,每天给你不一样的风格,优雅气质通勤风穿搭
- ▲15万装出简约北欧风新房,全屋最贵单品不超5千,后悔选浅色地砖
